Call anytime if you are needing Site Plan Development engineering and Construction Permitting on your next project.
LDC provides these services on any type and size of project ranging from one lot custom home site to large residential subdivision, commercial, educational, religious, industrial, and recreational developments.
LDC's engineering team has an array of talents and experience from designing residential subdivisions, to designing a half acre restaurant site, and to designing a new high school site consisting of over eighty acres, and everything in between.
Each parcel has it's own site specific characteristics and challenges. This is where LDC's experience and initial vision will benefit the project team upfront, during the Concept, phase of the project. All key elements need to be reviewed and assembled to determine the most effective design, as it relates to codes, zoning, engineering design issues, construction costs and aesthetics. Upon approval of the Preliminary designs, LDC carries out the design through the Construction Document and Construction Administration Phases of the Project.
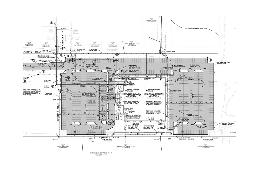
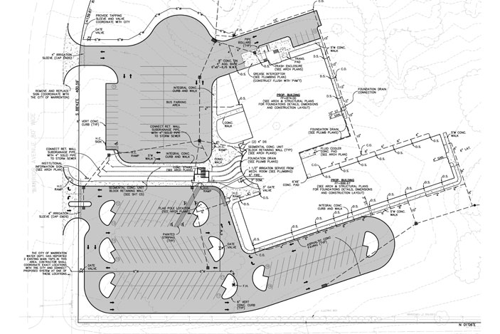
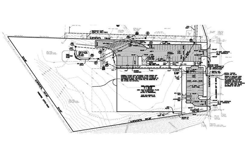
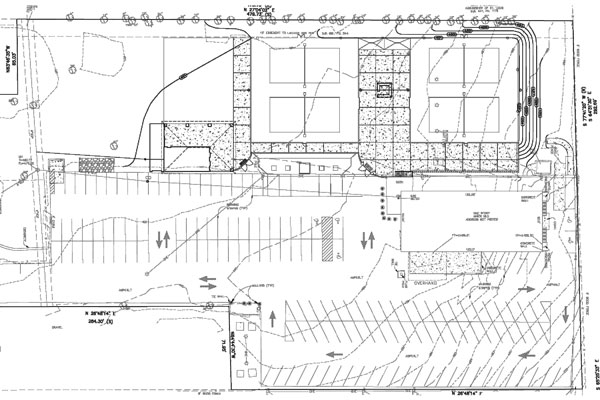
LDC designs all related above and below ground Site Improvements. A sensitive issue today is Storm Water runoff pollutants and the design of the necessary treatment facilities. Creativity is a must as it relates to the design of (BMP's) Best Management Practices for each site to control runoff containing pollutants. LDC has designed various (BMP) projects consisting of a single Rain Garden to a complex Multi-Staged Bio-Retention sand filtration systems and Storm Water Detention Facilities.
LDC's Civil Engineering Services include:
Planning how to develop a project takes the right mix of creativity with an ability to see the big picture. LDC combines their technical expertise and creativity with years of experience to maximize the use and the value of the development. Combining all of the diverse factors together is the key.
LDC's Land Planning Services include:
LDC provides Construction Management Services for site infrastructure improvements and residential building construction.
LDC's Construction Management Services include:








LDC is a Land Planning, Civil Engineering, and Construction Management Firm Licensed in Missouri and is located in O’Fallon, Missouri.
LDC has been providing services for the past 20 years to Architects, Developers, Owners, Realtors and General Contractors.
LDC is a forward thinking company that consistently delivers efficient, cost effective engineering designs with a high degree of responsiveness and effective communication. We take great pride in contributing to our clients and teams success.
LDC’s mission is to bring a combination of talent and experience along with a commitment to Quality of service on each project.
LDC’s policy is to provide our services based on being a trusted partner throughout the project and to achieve team goals. Since 1993 we have completed over a hundred and twenty five Educational School Projects, along with numerous Industrial projects, Restaurants, Churches, Residential Subdivisions, High School and College Campuses Running Tracks, Baseball, Soccer, Football and Sports Stadiums.
Along with our Engineering and design expertise, LDC has provided over 35 years of Individual Local Governmental Permit processing experience. Plan approvals and Permitting from local agencies consisting of Local Municipalities, (MSD) Metropolitan St. Louis Sewer District, St. Charles County, St. Louis County, (MODNR) Missouri Dept. of Natural Resources, and MDOT.
Please feel free to give us a call anytime to discuss your next project.